Remodel Plans

The plans have changed (I kept the old plans on the bottom, for you to compare). We had to replace the foundation of the north wall side of the house and that included a change in the garage foundation as well, so we had the chance to change a couple of things in the design.

So here goes, the new overview:

Screen Shot 2015-09-09 at 8.40.45 AMScreen Shot 2015-09-09 at 8.40.59 AM Screen Shot 2015-09-09 at 8.41.21 AM Screen Shot 2015-09-09 at 8.41.33 AM

 

 

 

 

 

 

 

 

 

 


Below is the old plan.


To get a picture of what we are planning on doing to restore this home, we created a CAD drawing of the current home and used that as the base to create the new design.

The roof of the west-side addition needs full replacement as it has partially caved in.
The roof of the west-side addition needs full replacement as it has partially caved in.
Screen Shot 2014-10-09 at 8.12.10 AM
Removing the old west-side addition and replace it with a distinct entrance.
The lower roof above the kitchen is at the point of collapse and has to be rebuild. The main-house roof very poorly aligns with the lower roof.
The lower roof above the kitchen is at the point of collapse and has to be rebuilt. The main-house roof aligns very poorly with the lower roof.
Screen Shot 2014-10-09 at 8.15.13 AM
Rebuild the roof and add a small section to the second floor. Also replace the poorly designed garage roof.
Screen Shot 2014-10-09 at 8.22.50 AM
Old first floor layout. the guest bedroom overlaps into the front porch.
Screen Shot 2014-10-29 at 7.54.21 AM
Planned first floor, guest room moves in, front porch is just a mudroom and living room gets more space.
Screen Shot 2014-10-09 at 8.21.43 AM
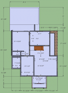
Second floor layout.
Screen Shot 2014-10-09 at 8.06.12 AM
Planned second floor layout with the small addition on the left.

 

Screen Shot 2014-10-29 at 8.01.53 AM
3D overview of planned First Floor layout, looking from the South-West corner.
Screen Shot 2014-10-29 at 8.02.41 AM
3D overview of planned First Floor layout, looking from the North-East corner.